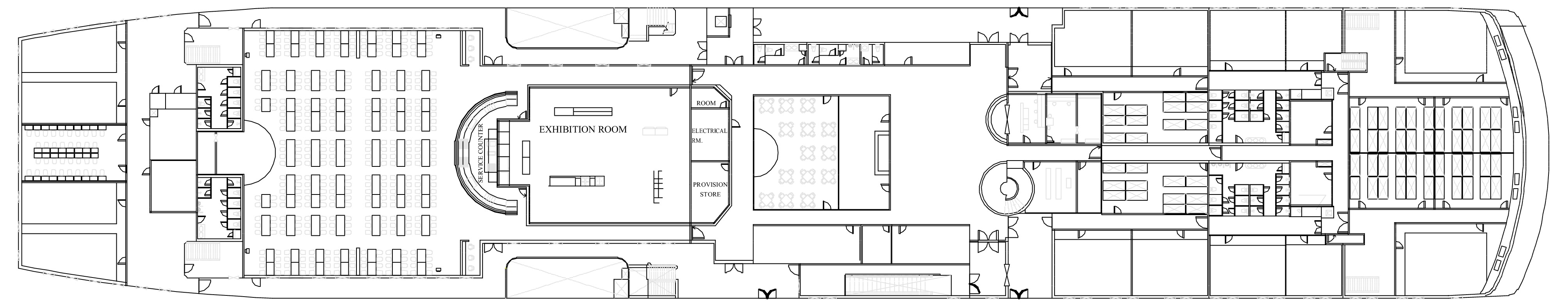
With the improvement of people's living standards, large-scaled public activities have increased considerably, and the emergency probability has increased greatly. When an emergency occurs, the emergency evacuation can effectively reduce casualties and economic losses. Therefore, how to quickly evacuate crowd is a current research hotspot in this field. The path planning of emergency evacuation is one of the effective ways to implement the crowd evacuation. Aiming at the problem of path planning for emergency evacuation and taking the grid map as the background, the ant colony cellular optimization (ACCO) algorithm is proposed as the path planning algorithm based on the cellular automata theory and ant colony algorithm. Firstly, in order to solve the problem of inconsistent time steps in the quadrilateral grid map, the grid map based on hexagonal cell is established and the ACCO algorithm is developed based on the hexagonal grid map. And the method of solving grid coordinate is given. Then, in order to improve the convergence speed and search ability of the ACCO algorithm, the static field is used to optimize the heuristic function, and the segment update rule is used to optimize the pheromone update method. Finally, the parameters of ACCO algorithm are optimized through the particle swarm optimization (PSO) algorithm. The method of designing the fitness evaluation function is proposed, and the optimal combination of parameters of the ACCO algorithm is implemented according to the fitness function. In order to verify the scientificity and effectiveness of the algorithm proposed in this research and also to systematically verify the optimization strategy, in this research the exhibition hall on the B-deck of a large cruise ship is used as the engineering background, and the traditional algorithm and the ACCO algorithm are adopted to perform the simulations. The simulation results show that compared with the traditional quadrilateral grid, the hexagonal grid proposed in this research unifies the simulation time step and can be used as the division method of the simulation environment. At the same time, the ACCO algorithm can effectively perform the evacuation path planning, and the optimization strategy proposed in this research not only acceletates the search speed, but also increases the solution space and improves the search ability, which can effectively avoid falling into the local optimal solution.